ファミーユ警固201号室
システムキッチン、IHクッキングヒーター付、浴室、バストイレ別、シャワー、シャンプードレッサー、給湯、トイレ、温水洗浄便座、暖房便座、洗濯機置場(室内)、ベランダ、フローリング、TVインターホン、冷暖エアコン、玄関チャイム
フォトアルバム
- 内観
- 外観・その他
上のサムネイルにマウスを乗せると拡大画像が切り替わります。
上のサムネイルにマウスを乗せると拡大画像が切り替わります。
担当者からのコメント
天神徒歩圏内♪女性デザイナー部屋完成!シャンドレ・IHヒーター・TVモニターフォン新品☆
地図
詳細情報
| 名前 | 【マンション】ファミーユ警固 201(ファミーユケゴ) | ||
|---|---|---|---|
| 価格 | 4.7万円 | 管理費・共益費 | 0.4万円 |
| 敷金/保証金 | なし / - | 礼金/償却・敷引 | 2ヶ月 / - |
| 更新料 | - | ||
| その他費用 |
|
||
| 所在地 | 福岡市中央区警固1丁目10-4 | ||
| 交通 |
|
||
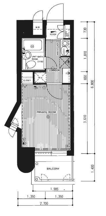
| 間取り |
1R
|
||
| 占有面積 | 27.00㎡ | バルコニー面積 | - |
| 築年月(築年数) | 1989年3月 (築37年) | 方位 | 南西向き |
| 建物構造 | SRC(鉄骨鉄筋コンクリート) | 所在階/階建 | 2階 / 10階建 |
| 総戸数 | - | 駐車場 | 空有 / 料金:15,000円 |
| 保険料 | 要 | 契約期間 | 2年まで |
| 引渡 | 相談 | 現況(予定年月) | 居住中 |
| 管理 | |||
| 条件・設備 |
|
||
| 備考 | |||
| 周辺施設 |
|
||
| 物件番号 | 1361 | 取引態様 | 仲介 |
| 情報登録日 | 2014年10月03日 | ||
総合評価
ファミーユ警固の総合評価 『0.0』
- 築年数
- 駅徒歩
- 画像数
- 設備
レビュー:株式会社アイル独自調査





